17896 172nd Avenue, ALACHUA, FL 32615
Active
Property Photos
Would you like to sell your home before you purchase this one?
Priced at Only: $339,990
For more Information Call:
Address: 17896 172nd Avenue, ALACHUA, FL 32615
Property Location and Similar Properties
- MLS#: OM716093 ( Residential )
- Street Address: 17896 172nd Avenue
- Viewed: 7
- Price: $339,990
- Price sqft: $174
- Waterfront: No
- Year Built: 2025
- Bldg sqft: 1956
- Bedrooms: 4
- Total Baths: 3
- Full Baths: 3
- Garage / Parking Spaces: 3
- Days On Market: 70
- Additional Information
- Geolocation: 29.8127 / -82.5276
- County: ALACHUA
- City: ALACHUA
- Zipcode: 32615
- Subdivision: Briarwood
- Elementary School: Alachua
- Middle School: A. L. Mebane
- High School: Santa Fe
- Provided by: DR HORTON REALTY OF WEST CENTRAL FLORIDA
- Contact: Jessica Cruz
- 352-414-3365

- DMCA Notice
-
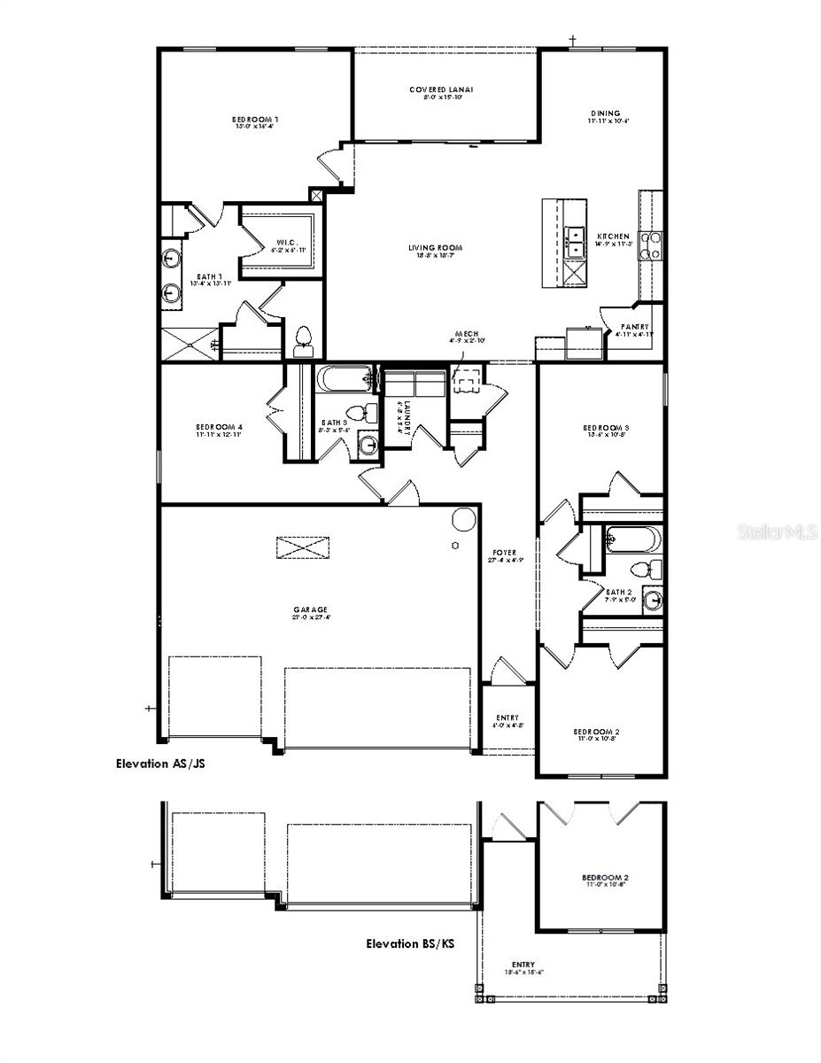
DescriptionOne or more photo(s) has been virtually staged. Under Construction. The Madison is a thoughtfully designed 3 car garage home with an inviting open concept layout perfect for all families. As you enter the foyer, you're greeted with two guest bedrooms and a shared guest bathroom. Across the hallway you will find the laundry room, linen closet, and a third guest bedroom complete with an ensuite bathroom. Heading into the kitchen, there is a large kitchen island with quartz countertops, stainless steel appliances, and a spacious walk in pantry. The kitchen overlooks the great room and dining area flowing into the outdoor covered lanai. Next to the living room is the primary bedroom with a double vanity, quartz countertops, and two closets. Bedroom four has an ensuite bathroom and is located next to the designated laundry room. The Madison is the epitome of modern living and includes a state of the art smart home system. Pictures, photographs, colors, features, and sizes are for illustration purposes only and will vary from the homes as built. Home and community information including pricing, included features, terms, availability and amenities are subject to change and prior sale at any time without notice or obligation. CRC057592.
Payment Calculator
- Principal & Interest -
- Property Tax $
- Home Insurance $
- HOA Fees $
- Monthly -
For a Fast & FREE Mortgage Pre-Approval
Apply Now
Apply NowFeatures
Building and Construction
- Builder Model: Madison
- Builder Name: DR Horton INC
- Covered Spaces: 0.00
- Flooring: Carpet, Luxury Vinyl
- Living Area: 1956.00
- Roof: Shingle
Property Information
- Property Condition: Under Construction
School Information
- High School: Santa Fe High School-AL
- Middle School: A. L. Mebane Middle School-AL
- School Elementary: Alachua Elementary School-AL
Garage and Parking
- Garage Spaces: 3.00
- Open Parking Spaces: 0.00
Eco-Communities
- Water Source: Public
Utilities
- Carport Spaces: 0.00
- Cooling: Central Air
- Heating: Electric, Heat Pump
- Pets Allowed: Yes
- Sewer: Public Sewer
- Utilities: Other
Finance and Tax Information
- Home Owners Association Fee: 605.00
- Insurance Expense: 0.00
- Net Operating Income: 0.00
- Other Expense: 0.00
- Tax Year: 2025
Other Features
- Appliances: Dishwasher, Microwave, Range
- Association Name: Golden Rule Real Estate and Property Management
- Association Phone: 352-505-3499
- Country: US
- Furnished: Unfurnished
- Interior Features: Open Floorplan
- Legal Description: BRIARWOOD PHASES 2 & 3 PB 38 PG 94 LOT 127 OR 5214/3601
- Levels: One
- Area Major: 32615 - Alachua
- Occupant Type: Vacant
- Parcel Number: 03044-200-127
- Zoning Code: PUD
Similar Properties
Nearby Subdivisions
Alachua Estates
Alachua Highlands
Alachua Hills Se
Alachua Lundys Add To Sw
Bland Plantation
Briarwood
Briarwood Ph 1 Pb 37 Pg 33
Briarwood Ph 2 3 Pb 38 Pg 94
Clarkes 2nd Add To Alachua
College Heights Alachua
Creekside Villas
Downing Add Alachua Lynwood Pa
Downingalachua
Dry Creek Alachua
Fletcher Trace
Forest Grove Farms
Foxridge
Heritage Oaks Ph 1
Kingsland
Kirkland Farms
Kirkland Farms Ph 1 Pb 39 Pg 6
Lakeview Villas
Lincoln Gardens Add Ala
None
Oak Ridge Crossing
Pilot Forest Ala
Red Oak Estates
Rolling Hills
Sandy Acres
Santa Fe Forest
Shaw Farms Of Alachua
Tara Forest East
Tara Village Pb 36 Pg 50
Trailhead Landing
Turkey Creek
University Ave Properties Inc
Wells Add To Alachua
Wyndswept Hills
- Lumi Bianconi
- Tropic Shores Realty
- Mobile: 352.263.5572
- Mobile: 352.263.5572
- lumibianconirealtor@gmail.com

























