2157 Sienna Spruce Street, WESLEY CHAPEL, FL 33543
Active
Property Photos
Would you like to sell your home before you purchase this one?
Priced at Only: $674,740
For more Information Call:
Address: 2157 Sienna Spruce Street, WESLEY CHAPEL, FL 33543
Property Location and Similar Properties
- MLS#: TB8474987 ( Residential )
- Street Address: 2157 Sienna Spruce Street
- Viewed: 76
- Price: $674,740
- Price sqft: $142
- Waterfront: No
- Year Built: 2026
- Bldg sqft: 4741
- Bedrooms: 5
- Total Baths: 5
- Full Baths: 4
- 1/2 Baths: 1
- Garage / Parking Spaces: 3
- Days On Market: 59
- Additional Information
- Geolocation: 28.1893 / -82.2755
- County: PASCO
- City: WESLEY CHAPEL
- Zipcode: 33543
- Subdivision: Wyndfields
- Elementary School: Double Branch
- Middle School: John Long
- High School: Wiregrass Ranch
- Provided by: D R HORTON REALTY OF TAMPA LLC
- Contact: Jodi Smenda
- 813-736-3541

- DMCA Notice
-
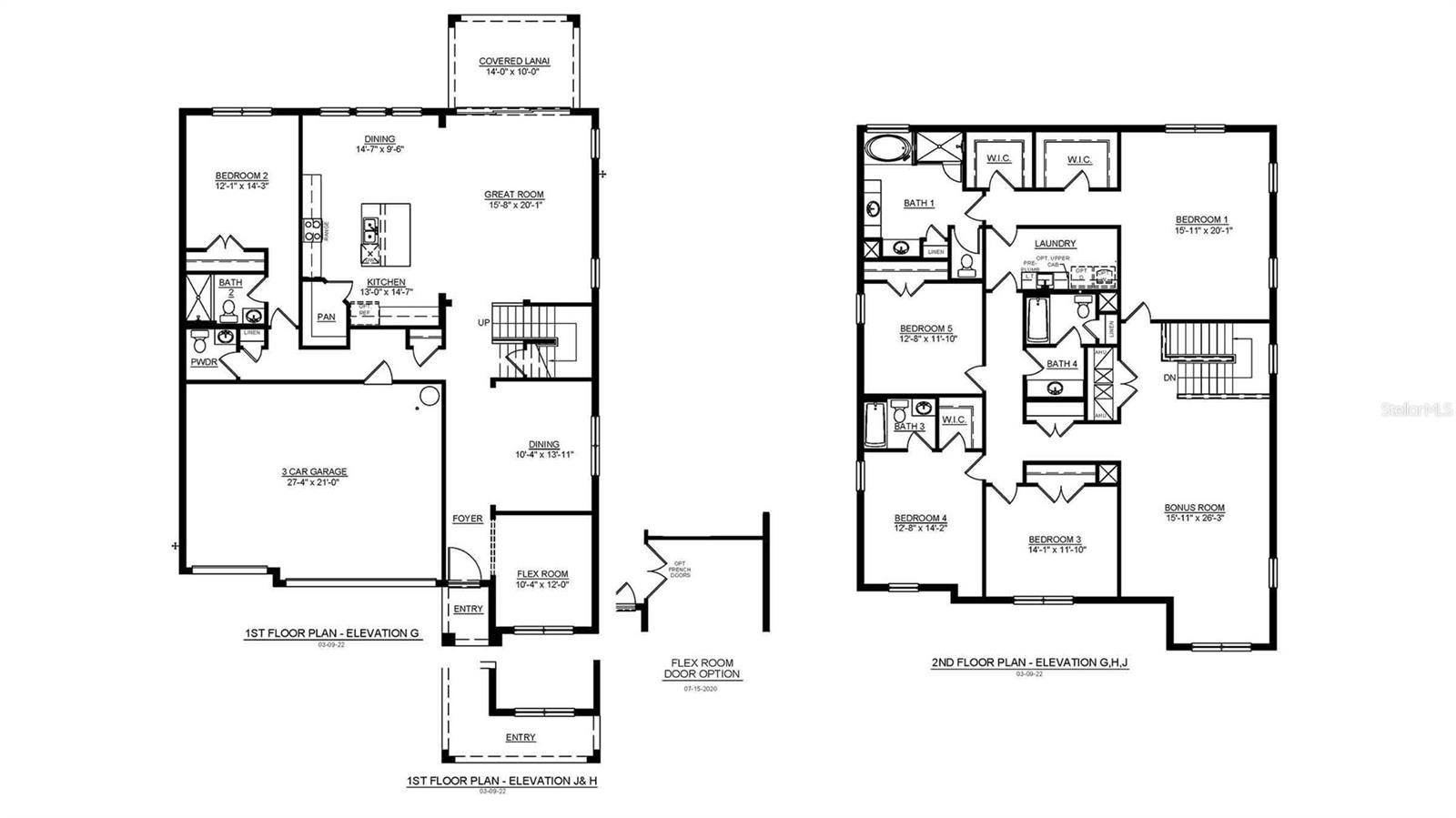
DescriptionOne or more photo(s) has been virtually staged. Under Construction. The builder is offering buyers up to $25,000 towards closing costs with the use of a preferred lender and title company. Located off SR 56, Woodcreek offers new homes in Wesley Chapel with a prime location that you wont want to pass up. At the center of this growing city, youll be just 15 minutes from I 75 and Tampa Premium Outlets, Main Event Entertainment, and just 5 minutes from Wiregrass Mall and its several dining establishments such as Grill Smith, Red Robin, Noble Crust, and countless other options. Several hospitals serve the area such as St. Joseph and Advent Health, which is just minutes from the community. Pasco County Schools are within 10 minutes of Woodcreek, as is the soon to be Wesley Chapel Sports Complex. Target and Publix are all right down the road as well. Woodcreek features express and tradition series that include Luxury Vinyl in the main living and dining area, a stainless steel appliance package, and quartz countertops. Each home is built with durable concrete block construction on the first and second stories and includes Smart Home System for seamless modern living. Please reach out for list of availability. Pictures, photographs, colors, features, and sizes are for illustration purposes only and will vary from homes as built. Home and community information, including pricing, included features, terms, availability, and amenities, are subject to change and prior sale at any time without notice or obligation. Materials may vary based on availability.
Payment Calculator
- Principal & Interest -
- Property Tax $
- Home Insurance $
- HOA Fees $
- Monthly -
For a Fast & FREE Mortgage Pre-Approval
Apply Now
Apply NowFeatures
Building and Construction
- Builder Model: Torino
- Builder Name: D.R. Horton
- Covered Spaces: 0.00
- Flooring: Carpet, Luxury Vinyl
- Living Area: 3975.00
- Roof: Shingle
Property Information
- Property Condition: Under Construction
School Information
- High School: Wiregrass Ranch High-PO
- Middle School: John Long Middle-PO
- School Elementary: Double Branch Elementary
Garage and Parking
- Garage Spaces: 3.00
- Open Parking Spaces: 0.00
Eco-Communities
- Pool Features: Other
- Water Source: Public
Utilities
- Carport Spaces: 0.00
- Cooling: Central Air
- Heating: Central, Heat Pump
- Pets Allowed: Yes
- Sewer: Public Sewer
- Utilities: Public
Amenities
- Association Amenities: Playground, Pool
Finance and Tax Information
- Home Owners Association Fee: 94.00
- Insurance Expense: 0.00
- Net Operating Income: 0.00
- Other Expense: 0.00
- Tax Year: 2025
Other Features
- Appliances: Dishwasher, Microwave, Range
- Association Name: Access Management
- Country: US
- Furnished: Unfurnished
- Interior Features: Open Floorplan
- Legal Description: WYNDFIELDS PHASES 2A1 AND 2A2 PB 97 PG 108 BLOCK 22 LOT 9
- Levels: Two
- Area Major: 33543 - Zephyrhills/Wesley Chapel
- Occupant Type: Vacant
- Parcel Number: 26 26 20 0130 02200 0090
- Views: 76
- Zoning Code: MPUD
Similar Properties
Nearby Subdivisions
Arborswiregrass Ranch
Ashberry Village
Ashberry Village Ph 1
Ashberry Village Ph 2a
Ashley Pines
Ashton Oaks
Country Walk
Country Walk Increment A Ph 02
Country Walk Increment D Ph 01
Country Walk Increment D Ph 02
Country Walk Increment E Ph 01
Country Walk Increment E Ph 02
Country Walk Increment F Ph 01
Estancia
Estancia Ravello
Estancia At Wiregrass
Estancia Ph 1d
Estancia Ph 2a
Estancia Ph 2b1
Estancia Ph 2b2
Estancia Ph 3a 3b
Estancia Ph 3a & 38
Estancia Ph 3a & 3b
Estancia Ph 3c
Estancia Ph 4
Estancia Phase 1d
Estancia Phs 3a 3b
Fairway Village
Fairway Village 02
Fairway Village Phase 1
Fox Ridge
Fox Ridge Ph Three
Meadow Pointe
Meadow Pointe 03
Meadow Pointe 03 Ph 01
Meadow Pointe 03 Prcl Ee Hh
Meadow Pointe 03 Prcl Ff Oo
Meadow Pointe 03 Prcl Pp Qq
Meadow Pointe 03 Prcl Tt
Meadow Pointe 04 Prcl K
Meadow Pointe 04 Prcl M
Meadow Pointe 3 Prcl Dd Y
Meadow Pointe 4 Prcl E F Prov
Meadow Pointe 4 Prcl J
Meadow Pointe 4 Prcl N O P En
Meadow Pointe Ii
Meadow Pointe Iii Phase 1
Meadow Pointe Iv Prcl Aa
Meadow Pointe Iv Prcl Aa North
Meadow Pointe Prcl 08
Meadow Pointe Prcl 12
Meadow Pointe Prcl 15
Meadow Pointe Prcl 17
Meadow Pointe Prcl 18
Meadow Pointe Prcl 3
Meadow Pointe Prcl 4a
Not In Hernando
Persimmon Park
Persimmon Park Ph 1
Persimmon Pk Ph 2b
Pinewalk Sub
Plat/wiregrass M23-ph 2
River Landing
River Landing Ph 1b
River Lndg Ph 1a11a2
River Lndg Ph 2a2b2c2d3a
Rivers Edge
Saddlebrook
Saddlebrook Condo Cl 03
Saddlebrook Condo Cl 06
Summerstone
The Ridge At Wiregrass
The Ridge At Wiregrass M23 Ph
The Ridge At Wiregrass Ranch
The Ridge Wiregrass M23 Phase
Timber Lake Estates
Union Park
Union Park Ph 2a
Union Park Ph 4a
Union Park Ph 4b 4c
Union Park Ph 5a 5b
Union Park Ph 5c 5d
Union Park Ph 6a 6b 6c
Union Park Ph 6a 6b 6c
Union Park Ph 6a6c
Union Park Ph 8
Union Park Ph 8a
Union Park Ph 8b 8c
Union Park Ph 8d
Valencia Ridge
Winding Rdg Ph 1 2
Winding Rdg Ph 1 2
Winding Rdg Ph 3
Winding Rdg Ph 4
Winding Ridge
Wiregrass M23 Ph 1a 1b
Wiregrass M23 Ph 1a & 1b
Wiregrass M23 Ph 1a 1b
Wiregrass M23ph 2
Woodcreek
Wyndfields
Zephyrhills Colony Co
- Lumi Bianconi
- Tropic Shores Realty
- Mobile: 352.263.5572
- Mobile: 352.263.5572
- lumibianconirealtor@gmail.com




















