4898 Southern Valley Loop, BROOKSVILLE, FL 34601
Active
Property Photos
Would you like to sell your home before you purchase this one?
Priced at Only: $825,000
For more Information Call:
Address: 4898 Southern Valley Loop, BROOKSVILLE, FL 34601
Property Location and Similar Properties
- MLS#: TB8464716 ( Residential )
- Street Address: 4898 Southern Valley Loop
- Viewed: 9
- Price: $825,000
- Price sqft: $183
- Waterfront: No
- Year Built: 2025
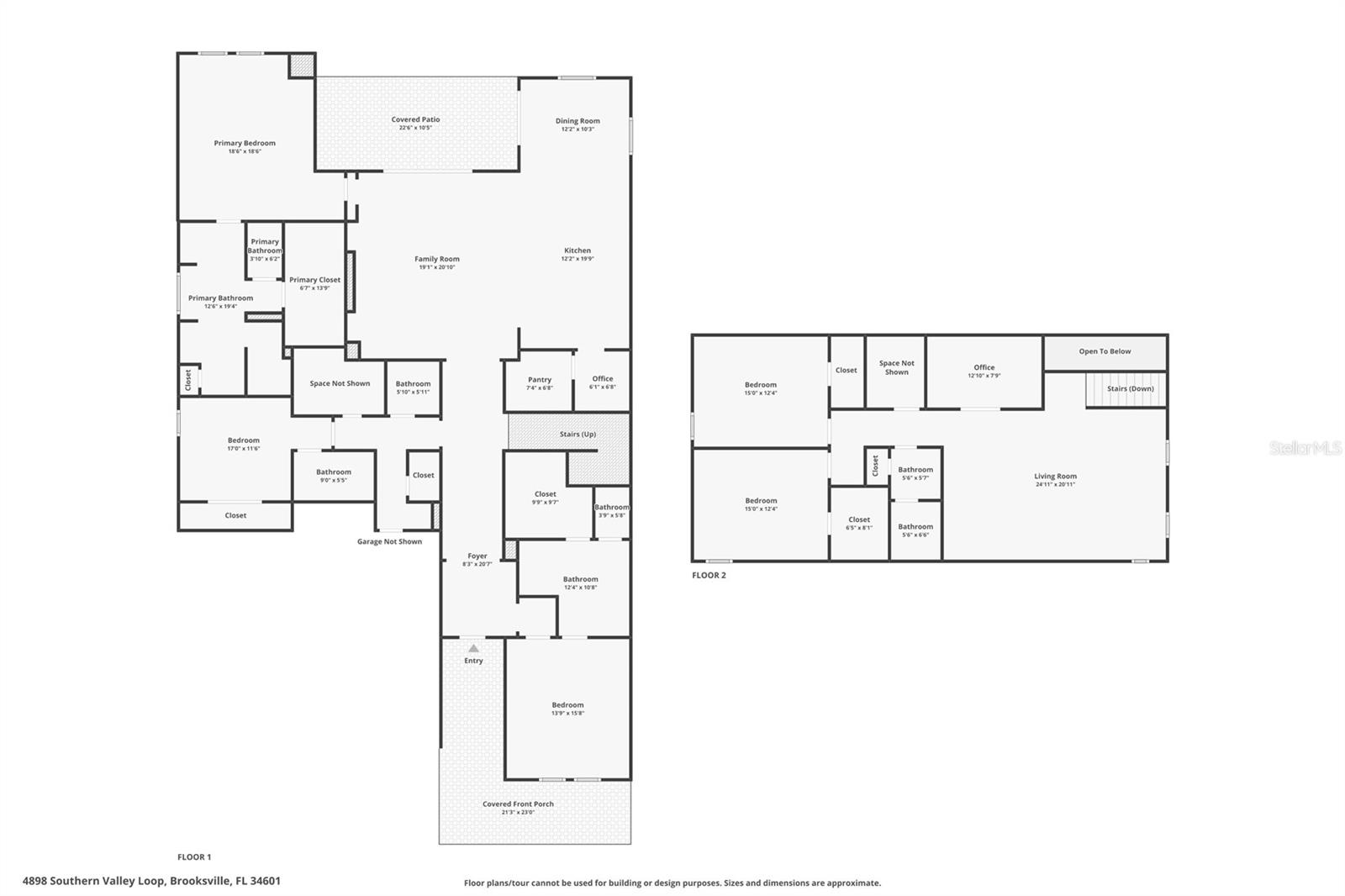
- Bldg sqft: 4500
- Bedrooms: 5
- Total Baths: 5
- Full Baths: 4
- 1/2 Baths: 1
- Garage / Parking Spaces: 3
- Additional Information
- Geolocation: 28.5012 / -82.4051
- County: HERNANDO
- City: BROOKSVILLE
- Zipcode: 34601
- Subdivision: Southern Hills Plantation Ph 2
- Elementary School: Moton
- Middle School: D.S. Parrot
- High School: Hernando
- Provided by: HOMAN REALTY GROUP INC
- Contact: Thomas "TJ" Homan, Jr
- 352-600-8170

- DMCA Notice
-
DescriptionWelcome to this stunning, less than one year old executive home located in the prestigious Southern Hills community, a premier luxury golf course neighborhood offering resort style living near Tampa and a private airport. Perfectly positioned on the golf course, this exceptional 5 bedroom, 4 bath residence combines elegance, space, and modern design ideal for growing families or multigenerational living. Step inside to discover luxury tile flooring throughout the main living areas, soaring ceilings accented by custom wood beams, and a gorgeous open concept layout designed for both everyday comfort and entertaining. The expansive chefs kitchen seamlessly opens to the large living room and eat in dining area, all overlooking breathtaking golf course views. Features include a large walk in pantry, separate butlers pantry, and abundant cabinetry and counter space. The oversized owners suite is conveniently located on the ground level and serves as a private retreat, complete with a spa like owners bathroom featuring upscale finishes and generous space. Additional bedrooms and bathrooms are thoughtfully designed to accommodate family and guests, while an upstairs living area provides a flexible bonus space perfect for a media room, playroom, or secondary lounge. This top tier executive home also offers an oversized garage, ample storage throughout, and high quality construction with modern finishes. A majority of the community development district (CDD) has already been paid, providing added value for the next owner. Located within the luxurious Southern Hills golf community, residents enjoy beautifully maintained surroundings, access to championship golf, and a prime location close to Tampa, shopping, dining, and a nearby private airport. This exceptional property offers the perfect blend of luxury, functionality, and lifestyle in one of the areas most sought after communities.
Payment Calculator
- Principal & Interest -
- Property Tax $
- Home Insurance $
- HOA Fees $
- Monthly -
For a Fast & FREE Mortgage Pre-Approval
Apply Now
Apply NowFeatures
Building and Construction
- Covered Spaces: 0.00
- Exterior Features: Lighting
- Flooring: Ceramic Tile
- Living Area: 3890.00
- Roof: Shingle
School Information
- High School: Hernando High
- Middle School: D.S. Parrot Middle
- School Elementary: Moton Elementary School
Garage and Parking
- Garage Spaces: 3.00
- Open Parking Spaces: 0.00
Eco-Communities
- Water Source: Public
Utilities
- Carport Spaces: 0.00
- Cooling: Central Air
- Heating: Central, Electric
- Pets Allowed: Yes
- Sewer: Public Sewer
- Utilities: Cable Available, Electricity Available
Finance and Tax Information
- Home Owners Association Fee: 357.05
- Insurance Expense: 0.00
- Net Operating Income: 0.00
- Other Expense: 0.00
- Tax Year: 2025
Other Features
- Appliances: Built-In Oven, Cooktop, Dishwasher, Dryer, Microwave, Range Hood, Refrigerator, Washer
- Association Name: Zita Toumey
- Association Phone: 866-378-1099
- Country: US
- Furnished: Unfurnished
- Interior Features: Ceiling Fans(s), Eat-in Kitchen, Living Room/Dining Room Combo, Primary Bedroom Main Floor, Solid Surface Counters, Solid Wood Cabinets, Stone Counters, Thermostat, Walk-In Closet(s)
- Legal Description: SOUTHERN HILLS PLANTATION PH 2 BLK 9 LOT 10
- Levels: One
- Area Major: 34601 - Brooksville
- Occupant Type: Owner
- Parcel Number: R10-223-19-3572-0090-0100
- Possession: Close Of Escrow
- Zoning Code: PDP
Similar Properties
Nearby Subdivisions
14.6 Acres Mol In S12 Of Se14
Ac Croom Rdmondon Hill
Brooksville
Candlelight
Cascades At S H Plant Ph 1 Rep
Cascades At Southern Hills
Cascades At Southern Hills Pla
Cedar Lane Sites
Champion Estates
Colonial Manor
Country Club Estate
Croom Road Sub
Damac Estates
Dogwood Estate Ph I
Dogwood Estate Ph Iv
Forest Hills Unrec
Fox Wood Plantation
Garmisch Hills
Garys Mrs T H Add
Gulf Ridge Park
Hales Add To Brooksvl
Highland Park Add To Brksvl
Hillcrest
Jennings Varn A Sub Of
Kingswood Parkrep Of 2nd
Lake Lindsey City
Lakeside Acres Mh Sub
Laurel Oaks Sub
Laws Add To Brooksvl
Leyland Preserve
Ludlow Heights
None
North Brksville Hghtsreplt
Northside Estates
Not In Hernando
Not On List
Nottingham Forest
Oakdale
Oakwood Park
Royal Oaks Estate
Saxons Sub
Shadowlawn Sub To Brooksvl
Southern Hills
Southern Hills Plantation
Southern Hills Plantation Club
Southern Hills Plantation Ph 1
Southern Hills Plantation Ph 2
Southern Hills Plantation Ph 3
Southern Hills Plantation Ph2
Southern Hills Plnt Ph1 Bl4735
Southside Estates
Spring Lake
Spring Lake Area
Sunshine Terrace
That Part Of Sw12 Of Nw14 Of N
Town Country
Townbrooksville
Unplatted
Vista Heights Estates
W12 Of Se14 Of Nw14 Of Ne14 Or
Whitman Pinesclass 1 Sub
William Lane Class 1 Sub
- Lumi Bianconi
- Tropic Shores Realty
- Mobile: 352.263.5572
- Mobile: 352.263.5572
- lumibianconirealtor@gmail.com



















































































