149 Wilbur Avenue 105, LAKE MARY, FL 32746
Active
Property Photos
Would you like to sell your home before you purchase this one?
Priced at Only: $399,999
For more Information Call:
Address: 149 Wilbur Avenue 105, LAKE MARY, FL 32746
Property Location and Similar Properties
- MLS#: O6382256 ( Residential )
- Street Address: 149 Wilbur Avenue 105
- Viewed: 64
- Price: $399,999
- Price sqft: $303
- Waterfront: No
- Year Built: 2026
- Bldg sqft: 1319
- Bedrooms: 2
- Total Baths: 2
- Full Baths: 2
- Days On Market: 56
- Additional Information
- Geolocation: 28.7598 / -81.3239
- County: SEMINOLE
- City: LAKE MARY
- Zipcode: 32746
- Subdivision: Crystal Lake Condominium
- Building: Crystal Lake Condominium
- Provided by: Q BOUTIQUE SPECIALTY REALTY INC
- Contact: Laura Diss
- 407-863-7965

- DMCA Notice
-
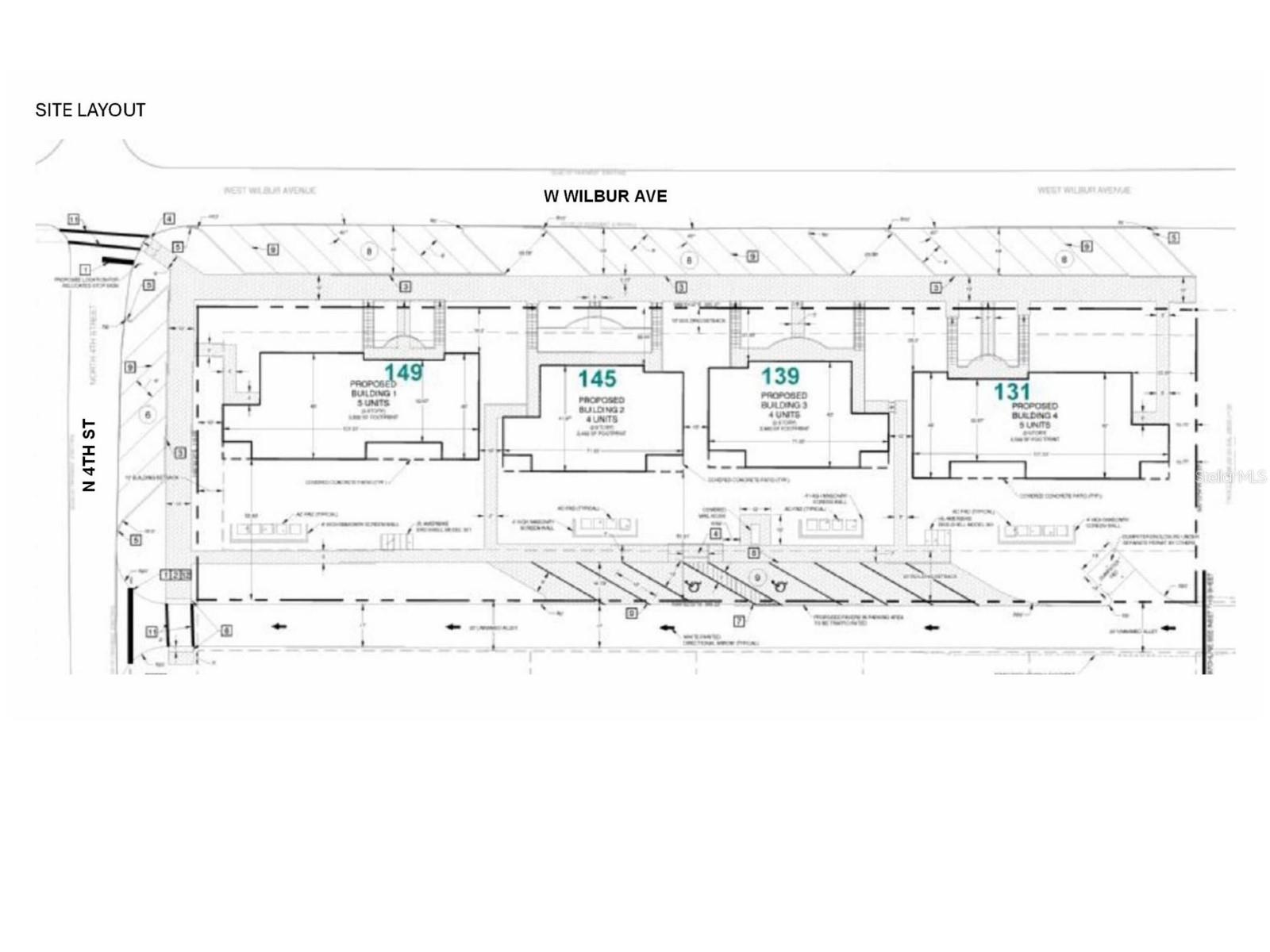
DescriptionOne or more photo(s) has been virtually staged. Pre Construction. To be built. Pre Construction. To be built. New downtown Lake Mary luxury condominiums pre selling now! Don't miss out! Only two downstairs 2 bedrooms/2 bathroom condos are available on the corner of 4th Street and W Wilbur. This unit is 1,103 square feet and comes standard with luxury finishes, kitchen appliances, windows with blinds in the glass, an optional butler pantry, an optional wine bar or coffee station, a French hood, a side covered patio, and a private storage closet for extra storage for bikes and holiday decorations. Assigned parking, a park like setting, and EV charging are available. Upgrade your interior design with three curated packages from Madison Snyder Design Co. She has carefully created custom paint palettes that create a modern, fresh feel, beautiful light fixtures, undercabinet lighting, and flooring options, including herringbone wood floors, wide vinyl planks, and ceramic tiles that coordinate with the kitchen cabinets. Options include beautiful solid slab granite backsplashes, herringbone tile backsplashes, and natural stone. The signature kitchen island features a sink, a built in microwave cabinet for easy access, a dishwasher, and an extended slab with pedestal legs for built in dining. The oversized walk in primary shower features an optional ombre mosaic tile, toiletry niches, and dual showerheads for a spa like experience. Large primary closet with an optional closet system. Extra windows provide a beautiful sundrenched environment. Your home is one block from the Pickleball Court on Country Club, Events Center, and the new Playground. You are two blocks from the shops and restaurants on 4th Street, Lakeview Ave, and Country Club Rd. Enjoy easy access to the weekend Farmers ' Market, events in Central Park, and City Hall. SunRail is a few blocks away, no car needed. Quick drive to Sanford International Airport, local hospital systems, and the business districts of International Parkway at Heathrow and Colonial TownPark. Limited time incentives could include interest rate buydowns and assistance with closing costs for the first five homes in Building One. Delivery estimated prior to December 2026. Experience exceptional customer service and customized sales from a local boutique builder and broker. Call to schedule your private sales consultation today.
Payment Calculator
- Principal & Interest -
- Property Tax $
- Home Insurance $
- HOA Fees $
- Monthly -
For a Fast & FREE Mortgage Pre-Approval
Apply Now
Apply NowFeatures
Building and Construction
- Builder Name: OHANA CUSTOM BUILDERS LLC
- Covered Spaces: 0.00
- Exterior Features: Private Entrance, Rain Gutters, Sidewalk, Sliding Doors
- Flooring: Ceramic Tile, Hardwood, Luxury Vinyl
- Living Area: 1103.00
- Roof: Other, Tile
Property Information
- Property Condition: Pre-Construction
Land Information
- Lot Features: City Limits, Landscaped, Level, Near Public Transit, Sidewalk, Paved
Garage and Parking
- Garage Spaces: 0.00
- Open Parking Spaces: 0.00
- Parking Features: Alley Access, Assigned, Ground Level, On Street
Eco-Communities
- Water Source: None
Utilities
- Carport Spaces: 0.00
- Cooling: Central Air
- Heating: Electric
- Pets Allowed: Cats OK, Dogs OK, Yes
- Sewer: Public Sewer
- Utilities: BB/HS Internet Available, Fiber Optics
Finance and Tax Information
- Home Owners Association Fee Includes: Common Area Taxes, Escrow Reserves Fund, Insurance, Maintenance Structure, Maintenance Grounds, Maintenance, Management, Pest Control
- Home Owners Association Fee: 0.00
- Insurance Expense: 0.00
- Net Operating Income: 0.00
- Other Expense: 0.00
- Tax Year: 2025
Other Features
- Accessibility Features: Accessible Approach with Ramp
- Appliances: Dishwasher, Electric Water Heater, Range Hood, Refrigerator, Solar Hot Water
- Association Name: Top Notch CAM, Marilyn Vice
- Country: US
- Furnished: Unfurnished
- Interior Features: Crown Molding, Kitchen/Family Room Combo, Split Bedroom, Walk-In Closet(s)
- Legal Description: LOTS 3 TO 6 BLK 26 CRYSTAL LAKE WINTER HOMES SUBD PB 2 PG 115
- Levels: One
- Area Major: 32746 - Lake Mary / Heathrow
- Occupant Type: Vacant
- Parcel Number: 149WWILBUR105
- Possession: Close Of Escrow
- Style: Contemporary, Mediterranean
- Unit Number: 105
- View: City, Trees/Woods
- Views: 64
- Zoning Code: DC
Similar Properties
- Lumi Bianconi
- Tropic Shores Realty
- Mobile: 352.263.5572
- Mobile: 352.263.5572
- lumibianconirealtor@gmail.com





























