729 Marion Oaks, OCALA, FL 34473
Active
Property Photos
Would you like to sell your home before you purchase this one?
Priced at Only: $417,000
For more Information Call:
Address: 729 Marion Oaks, OCALA, FL 34473
Property Location and Similar Properties
- MLS#: O6376296 ( Residential )
- Street Address: 729 Marion Oaks
- Viewed: 3
- Price: $417,000
- Price sqft: $172
- Waterfront: No
- Year Built: 2026
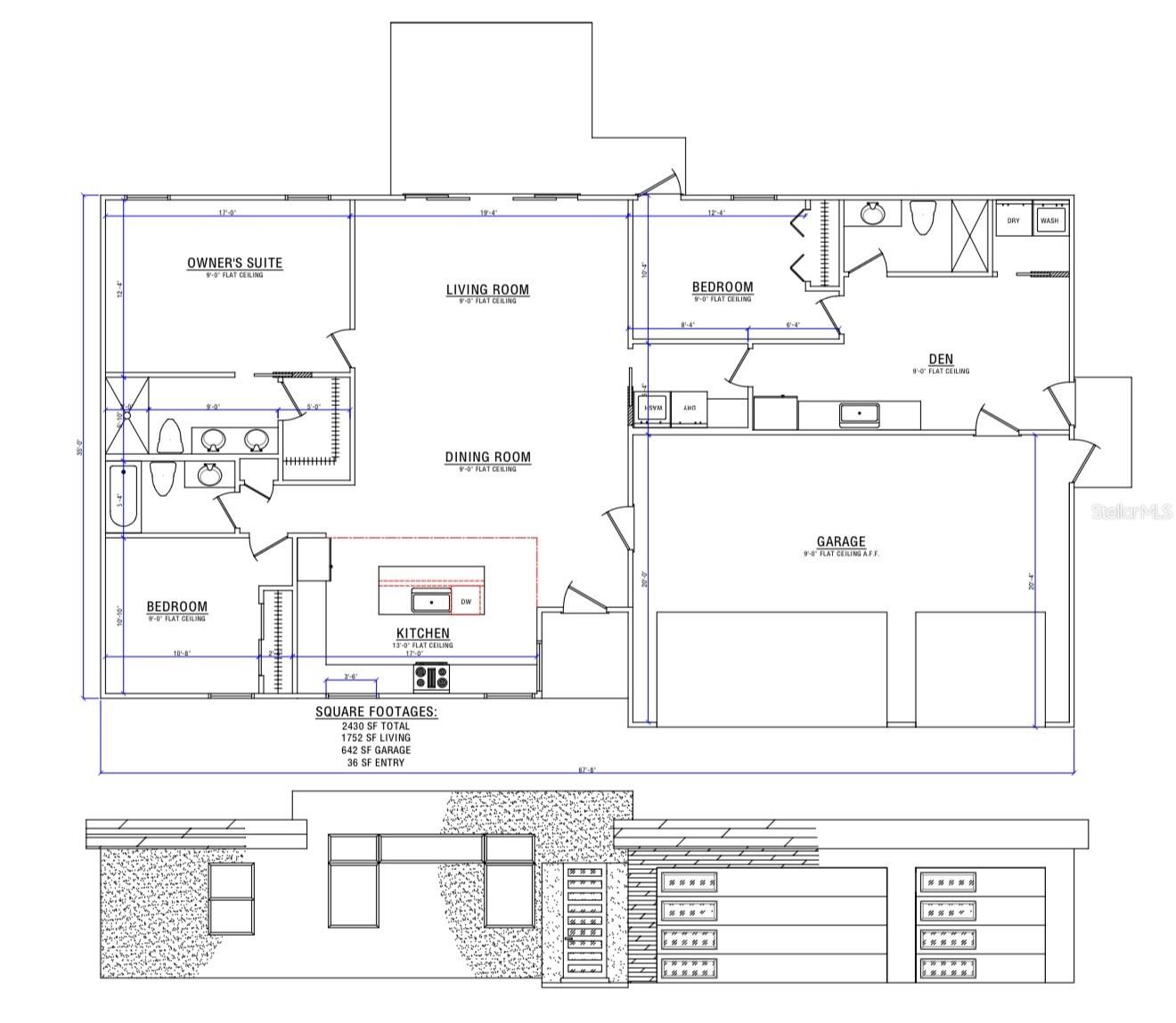
- Bldg sqft: 2430
- Bedrooms: 3
- Total Baths: 3
- Full Baths: 3
- Garage / Parking Spaces: 3
- Days On Market: 93
- Additional Information
- Geolocation: 29.0036 / -82.2258
- County: MARION
- City: OCALA
- Zipcode: 34473
- Subdivision: Marion Oaks
- Provided by: KELLER WILLIAMS CLASSIC
- Contact: Jumillie Montanez Rivera
- 407-292-5400

- DMCA Notice
-
DescriptionOne or more photo(s) has been virtually staged. Pre Construction. To be built. Brand New Home to be built. Build by Benaiah Home Builders! Be the first to call this beautiful newly built home your own! Thoughtfully designed with modern living in mind, this home will feature an open concept layout, quality craftsmanship, and stylish finishes throughout. The home is built with commercial grade cold formed steel. This is a multigenerational home with a mother in law suite. Termite fire water and mold resistance. New high school being built, new elementary being built perfect home. Brand new construction, abundant natural light, Modern kitchen with quality cabinetry and finishes, Spacious bedrooms, Located in a desirable, growing neighborhood. Now is the perfect time to secure a home thats fresh, modern, and built to last. Dont miss the opportunity to own a brand new home and watch it come to life from the ground up! Call me today! for details, timelines, and customization options.
Payment Calculator
- Principal & Interest -
- Property Tax $
- Home Insurance $
- HOA Fees $
- Monthly -
For a Fast & FREE Mortgage Pre-Approval
Apply Now
Apply NowFeatures
Building and Construction
- Builder Model: Davao
- Builder Name: Benaiah HoDme Builders
- Covered Spaces: 0.00
- Exterior Features: Private Yard
- Flooring: Vinyl
- Living Area: 1752.00
- Roof: Other
Property Information
- Property Condition: Pre-Construction
Garage and Parking
- Garage Spaces: 3.00
- Open Parking Spaces: 0.00
- Parking Features: Driveway
Eco-Communities
- Water Source: Well
Utilities
- Carport Spaces: 0.00
- Cooling: Central Air
- Heating: None
- Sewer: Septic Tank
- Utilities: Electricity Available
Finance and Tax Information
- Home Owners Association Fee: 0.00
- Insurance Expense: 0.00
- Net Operating Income: 0.00
- Other Expense: 0.00
- Tax Year: 2025
Other Features
- Appliances: Disposal
- Country: US
- Furnished: Unfurnished
- Interior Features: High Ceilings, Primary Bedroom Main Floor, Split Bedroom
- Legal Description: SEC 20 TWP 17 RGE 21 PLAT BOOK O PAGE 164 MARION OAKS UNIT 9 BLK 1247 LOT 19
- Levels: One
- Area Major: 34473 - Ocala
- Occupant Type: Vacant
- Parcel Number: 8009-1247-19
- Zoning Code: R1
Similar Properties
Nearby Subdivisions
1149marion Oaks
8marion Oaks Un Eleven
Aspire At Marion Oaks
Block 1458 Marion Oaks Un Twe
Huntington Ridge
Mariaon Oaks
Marion Oak Un 10
Marion Oaks
Marion Oaks 01
Marion Oaks 02
Marion Oaks 03
Marion Oaks 04
Marion Oaks 05
Marion Oaks 06
Marion Oaks 10
Marion Oaks 11
Marion Oaks 2
Marion Oaks 5
Marion Oaks 6
Marion Oaks 7
Marion Oaks 9
Marion Oaks Glen Aire
Marion Oaks South
Marion Oaks Twelve
Marion Oaks Un 01
Marion Oaks Un 02
Marion Oaks Un 03
Marion Oaks Un 04
Marion Oaks Un 05
Marion Oaks Un 06
Marion Oaks Un 07
Marion Oaks Un 09
Marion Oaks Un 1
Marion Oaks Un 10
Marion Oaks Un 11
Marion Oaks Un 12
Marion Oaks Un 2
Marion Oaks Un 3
Marion Oaks Un 4
Marion Oaks Un 5
Marion Oaks Un 7
Marion Oaks Un 9
Marion Oaks Un Eight First Re
Marion Oaks Un Eight First Rep
Marion Oaks Un Eleven
Marion Oaks Un Five
Marion Oaks Un Four
Marion Oaks Un Nine
Marion Oaks Un Ninedivision
Marion Oaks Un One
Marion Oaks Un Sev
Marion Oaks Un Seven
Marion Oaks Un Six
Marion Oaks Un Ten
Marion Oaks Un Three
Marion Oaks Un Twelve
Marion Oaks Un Two Glen Aire P
Marion Oaks Unit 07
Marion Okas Un 11
Marions Oaks Un 10
Mcginley Landing
Neighborhood 9063
Neighborhood 9066
Not On List
Ocala Park Estates Un 04
Resi
Round Lake Usfs
Sec 04 Twp 17 Rge 21 Plat Book
Shady Road Farms
Summerglen
Summerglen Ph 01
Summerglen Ph 02
Summerglen Ph 03
Summerglen Ph 04
Summerglen Ph 05
Summerglen Ph 06b
Summerglen Ph 1
Summerglen Ph I
Timberwalk
Turning Pointe Estate
- Lumi Bianconi
- Tropic Shores Realty
- Mobile: 352.263.5572
- Mobile: 352.263.5572
- lumibianconirealtor@gmail.com





















